Hа аренду коммерческие офисы в Новом современном здании.
Об обьекте
Описание местности
Здание расположенно в очень удачном месте, в 5-ти минутах езды от центра, а также 5-ти минутах езды до Межапарка и т/ц Альфа. Напротив жилого комплекса находится универмаг эксклюзивных товаров „Sky&More”, а также универсам Sky, Rimi, Maxima. Хорошее транспортное сообщение.
Описание здания
В 2008 году здание Duntes biroji получило 1-е место на конкурсе новой недвижимости в номинации Лучшее офисное здание (Labākā biroju ēka). Концепцию здания разработал опытный финский архитектор Tuomo Siitonen. Благодаря модульному принципу, планировка офисных помещений легко адаптируема к индивидуальным потребностям каждого арендатора. Здание разработано в виде раздвоенного семиэтажного строения с широким, застекленным атриумом и гармоничной средой. Заботясь об удобствах арендаторов и гостей, в Duntes biroji имеется 332 места автостоянки на территории объекта и в подвальных этажах здания. Удобный доступ к автостоянке обеспечивают автоматические карты, используемые также в качестве системы учета времени работы.
Общее описание
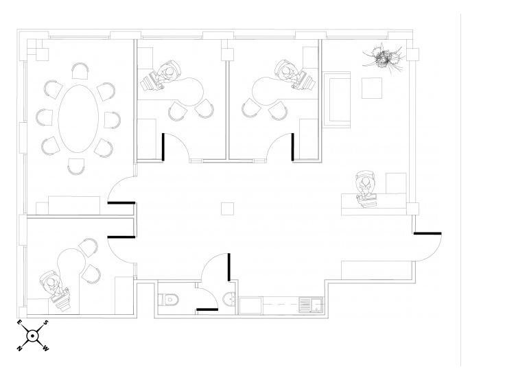
Предлагаем на аренду коммерческое помещение в Новом современном здании.
Площадь 104, 9 м2. Третий этаж. 5 комнат
В здании 4 лифта, вентиляция, кондиционеры, сотрудник входную карту чтения системы, 24-часовая охрана, парковка, здание имеет приятное кафе, высокоскоростной доступ в интернет, видеонаблюдение.
Арендная плата 12 Euro/m2/месяц
Обслуживание 0, 95 Euro/m2/месяц
Расходы на коммунальные услуги в среднем в год 2, 20 Euro/m2/месяц.
Парковка: наземная парковка 3 места 40 евро / месяц
Инженерный корпус соответствует последним мировым тенденциям и высоким стандартам качества:
◦ централизованного водоснабжения и канализации
◦ индивидуально контролируемые системы кондиционирования воздуха
◦ система вентиляции с низким оборудованием рекуперации энергии
◦ мощности, обеспечиваемой два параллельных соединения
◦ пожарной и охранной сигнализации
◦ системы оповещения
◦ подключения к разным операторам 3 оптические сети интернет
◦ телефонных сетей
◦ Телевизионные сети
◦ Система видеонаблюдения
Удобство сотрудников:
◦ демократическим ценам кафе на 110 мест
◦ возле супермаркетов Rimi, Maxima и SKY & MORE
◦ удобный доступ к общественным и личным транспортом.
Информация
Цена
Услуги/сервис:
- Лифт
- Интернет
- Парковка
- Сигнализация
- Живая Охрана
Коммуникации:
- Газовое отопление
- Городская канализация
- Городскoe водоснабжение
Контактная персона
Илона Горенко
Руководитель отдела недвижимости Ideal Property +37126176578 WhatsApp Viber ilona@idealproperty.lvЗадать вопрос
Другие предложения недвижимости. Саркандаугава.







